Chippenham Phase 4
Written By SBA Design
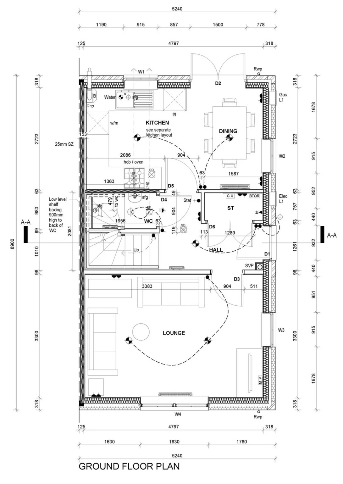
SBA Design were instructed to provide a detailed architectural working drawing package for 51 plots, all delivered on time and on budget.
SBA Design were instructed to provide a detailed architectural working drawing package for 51 plots, all delivered on time and on budget.